部屋・空室情報Room List
個室
空室数:3 / 合計部屋数:4個室
空室数:3 / 合計部屋数:4部屋写真
-
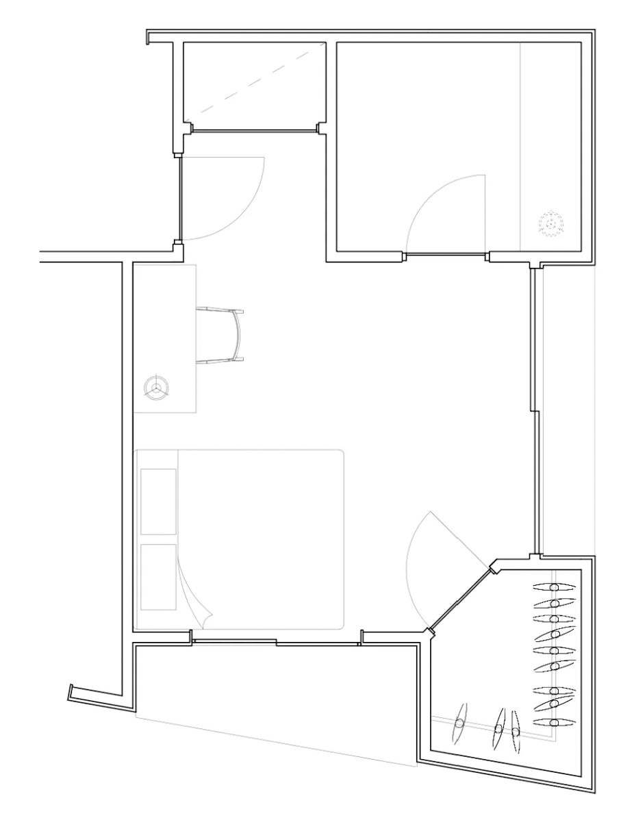
こちらのお部屋はカップルやご夫婦の2人暮らしに最適です。クイーンサイズのベッド、机と椅子、ウォークインクローゼット、小さな勉強部屋が揃い、快適にお過ごしいただけます。
毎月の費用の内訳は以下の通りです。
家賃:250,000円
共益費:65,000円
火災保険:1,300円
共益費には水道・光熱費・インターネット・清掃費・管理費が含まれ、追加費用不要。
保証料60,000円は家賃一括払いの場合は不要です。
期間限定物件(〜2026年5月20日)で初期費用なし。
退去時清掃費30,000円+税(5月10日以降の退去は不要)です。 -
こちらのお部屋はカップルやご夫婦の2人暮らしに最適です。クイーンサイズのベッド、机と椅子、ウォークインクローゼット、小さな勉強部屋が揃い、快適にお過ごしいただけます。
毎月の費用の内訳は以下の通りです。
家賃:250,000円
共益費:65,000円
火災保険:1,300円
共益費には水道・光熱費・インターネット・清掃費・管理費が含まれ、追加費用不要。
保証料60,000円は家賃一括払いの場合は不要です。
期間限定物件(〜2026年5月20日)で初期費用なし。
退去時清掃費30,000円+税(5月10日以降の退去は不要)です。 -
毎月の費用の内訳は以下の通りです。
家賃:150,000円
共益費:45,000円
火災保険:1,300円
共益費には、水道・光熱費・インターネット、清掃費、管理費など、生活に必要な費用がすべて含まれておりますので、追加費用を気にせず快適にお過ごしいただけます。
なお、保証料については通常60,000円が必要となりますが、家賃を一括払いの場合は保証料は不要です。
こちらの物件は、2026年5月20日までの期間限定物件となっており、初期費用は一切かかりません。
※ご退去時には清掃費として30,000円+税を頂戴いたしますが、5月10日以降のご退去の場合は清掃費は不要です。 -
毎月の費用の内訳は以下の通りです。
家賃:150,000円
共益費:45,000円
火災保険:1,300円
共益費には、水道・光熱費・インターネット、清掃費、管理費など、生活に必要な費用がすべて含まれておりますので、追加費用を気にせず快適にお過ごしいただけます。
なお、保証料については通常60,000円が必要となりますが、家賃を一括払いの場合は保証料は不要です。
こちらの物件は、2026年5月20日までの期間限定物件となっており、初期費用は一切かかりません。
※ご退去時には清掃費として30,000円+税を頂戴いたしますが、5月10日以降のご退去の場合は清掃費は不要です。 -
毎月の費用の内訳は以下の通りです。
家賃:140,000円
共益費:45,000円
火災保険:1,300円
共益費には、水道・光熱費・インターネット、清掃費、管理費など、生活に必要な費用がすべて含まれておりますので、追加費用を気にせず快適にお過ごしいただけます。
なお、保証料については通常60,000円が必要となりますが、家賃を一括払いの場合は保証料は不要です。
こちらの物件は、2026年5月20日までの期間限定物件となっており、初期費用は一切かかりません。
※ご退去時には清掃費として30,000円+税を頂戴いたしますが、5月10日以降のご退去の場合は清掃費は不要です。 -
毎月の費用の内訳は以下の通りです。
家賃:140,000円
共益費:45,000円
火災保険:1,300円
共益費には、水道・光熱費・インターネット、清掃費、管理費など、生活に必要な費用がすべて含まれておりますので、追加費用を気にせず快適にお過ごしいただけます。
なお、保証料については通常60,000円が必要となりますが、家賃を一括払いの場合は保証料は不要です。
こちらの物件は、2026年5月20日までの期間限定物件となっており、初期費用は一切かかりません。
※ご退去時には清掃費として30,000円+税を頂戴いたしますが、5月10日以降のご退去の場合は清掃費は不要です。 -
こちらのお部屋はカップルやご夫婦の2人暮らしに最適です。クイーンサイズのベッド、机と椅子、大きいハンガーラック、ソファーとローテーブルが揃い、快適にお過ごしいただけます。
毎月の費用の内訳は以下の通りです。
家賃:340,000円
共益費:80,000円
火災保険:1,300円
共益費には水道・光熱費・インターネット・清掃費・管理費が含まれ、追加費用不要。
保証料60,000円は家賃一括払いの場合は不要です。
期間限定物件(〜2026年5月20日)で初期費用なし。
退去時清掃費30,000円+税(5月10日以降の退去は不要)です。 -
こちらのお部屋はカップルやご夫婦の2人暮らしに最適です。クイーンサイズのベッド、机と椅子、大きいハンガーラック、ソファーとローテーブルが揃い、快適にお過ごしいただけます。
毎月の費用の内訳は以下の通りです。
家賃:340,000円
共益費:80,000円
火災保険:1,300円
共益費には水道・光熱費・インターネット・清掃費・管理費が含まれ、追加費用不要。
保証料60,000円は家賃一括払いの場合は不要です。
期間限定物件(〜2026年5月20日)で初期費用なし。
退去時清掃費30,000円+税(5月10日以降の退去は不要)です。
-
こちらのお部屋はカップルやご夫婦の2人暮らしに最適です。クイーンサイズのベッド、机と椅子、ウォークインクローゼット、小さな勉強部屋が揃い、快適にお過ごしいただけます。
毎月の費用の内訳は以下の通りです。
家賃:250,000円
共益費:65,000円
火災保険:1,300円
共益費には水道・光熱費・インターネット・清掃費・管理費が含まれ、追加費用不要。
保証料60,000円は家賃一括払いの場合は不要です。
期間限定物件(〜2026年5月20日)で初期費用なし。
退去時清掃費30,000円+税(5月10日以降の退去は不要)です。 -
こちらのお部屋はカップルやご夫婦の2人暮らしに最適です。クイーンサイズのベッド、机と椅子、ウォークインクローゼット、小さな勉強部屋が揃い、快適にお過ごしいただけます。
毎月の費用の内訳は以下の通りです。
家賃:250,000円
共益費:65,000円
火災保険:1,300円
共益費には水道・光熱費・インターネット・清掃費・管理費が含まれ、追加費用不要。
保証料60,000円は家賃一括払いの場合は不要です。
期間限定物件(〜2026年5月20日)で初期費用なし。
退去時清掃費30,000円+税(5月10日以降の退去は不要)です。 -
毎月の費用の内訳は以下の通りです。
家賃:150,000円
共益費:45,000円
火災保険:1,300円
共益費には、水道・光熱費・インターネット、清掃費、管理費など、生活に必要な費用がすべて含まれておりますので、追加費用を気にせず快適にお過ごしいただけます。
なお、保証料については通常60,000円が必要となりますが、家賃を一括払いの場合は保証料は不要です。
こちらの物件は、2026年5月20日までの期間限定物件となっており、初期費用は一切かかりません。
※ご退去時には清掃費として30,000円+税を頂戴いたしますが、5月10日以降のご退去の場合は清掃費は不要です。 -
毎月の費用の内訳は以下の通りです。
家賃:150,000円
共益費:45,000円
火災保険:1,300円
共益費には、水道・光熱費・インターネット、清掃費、管理費など、生活に必要な費用がすべて含まれておりますので、追加費用を気にせず快適にお過ごしいただけます。
なお、保証料については通常60,000円が必要となりますが、家賃を一括払いの場合は保証料は不要です。
こちらの物件は、2026年5月20日までの期間限定物件となっており、初期費用は一切かかりません。
※ご退去時には清掃費として30,000円+税を頂戴いたしますが、5月10日以降のご退去の場合は清掃費は不要です。 -
こちらのお部屋はカップルやご夫婦の2人暮らしに最適です。クイーンサイズのベッド、机と椅子、大きいハンガーラック、ソファーとローテーブルが揃い、快適にお過ごしいただけます。
毎月の費用の内訳は以下の通りです。
家賃:340,000円
共益費:80,000円
火災保険:1,300円
共益費には水道・光熱費・インターネット・清掃費・管理費が含まれ、追加費用不要。
保証料60,000円は家賃一括払いの場合は不要です。
期間限定物件(〜2026年5月20日)で初期費用なし。
退去時清掃費30,000円+税(5月10日以降の退去は不要)です。 -
こちらのお部屋はカップルやご夫婦の2人暮らしに最適です。クイーンサイズのベッド、机と椅子、大きいハンガーラック、ソファーとローテーブルが揃い、快適にお過ごしいただけます。
毎月の費用の内訳は以下の通りです。
家賃:340,000円
共益費:80,000円
火災保険:1,300円
共益費には水道・光熱費・インターネット・清掃費・管理費が含まれ、追加費用不要。
保証料60,000円は家賃一括払いの場合は不要です。
期間限定物件(〜2026年5月20日)で初期費用なし。
退去時清掃費30,000円+税(5月10日以降の退去は不要)です。



